

Wohnen
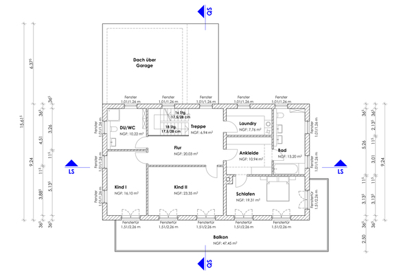
Entwurf Ausbau Dachgeschoss im Einfamilienhaus
Bauherr:
Privat
Standort:
Navis (Tirol/Österreich)
LP:
1 bis 3
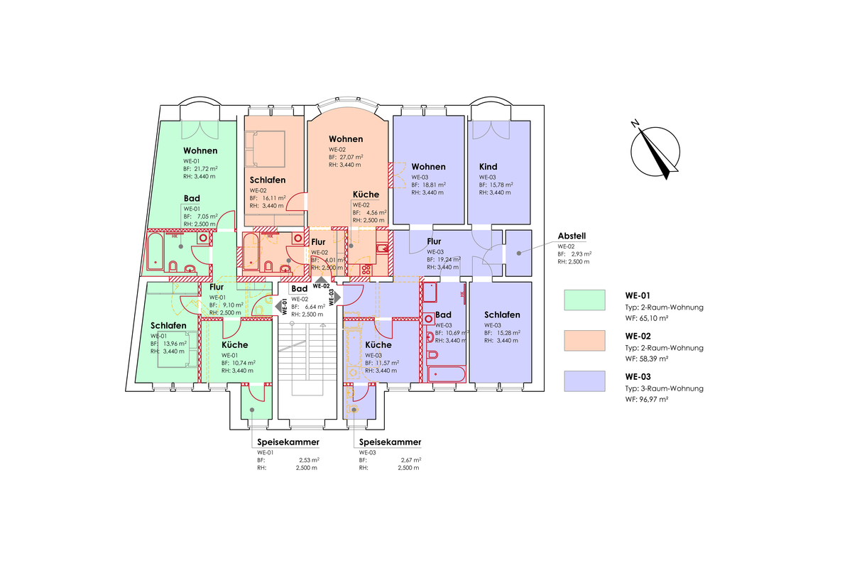
Entwurf Umbau Wohn- und Geschäftshaus Gartenstraße
Bauherr:
Ostsächsische Sparkasse Dresden c/o. SWI GmbH
Standort:
Pirna
LP:
1 bis 3












Anfang